x3 – AMAZON Data Centers
🗁 Category: Industrial Architecture
⚲ Location: Riyadh, SAUDI ARABIA
🗓 Year: 2023-2025
____________________________________
x3 – AMAZON Data Centers
⚲ Location: Riyadh, SAUDI ARABIA
🗓 Year: 2023-2025
____________________________________
AERIAL RENDER
DATA CENTER ENTRY RENDER
CHILLER SCREEN RENDER
SECURITY ENTRY RENDER
INTERNAL RENDER
AERIAL MAIN BUILDING RENDER
SITE 1 DEVELOPMENT PLAN
SITE 2 DEVELOPMENT PLAN
SITE 3 DEVELOPMENT PLAN
CHILLER SCREENS ELEVATION
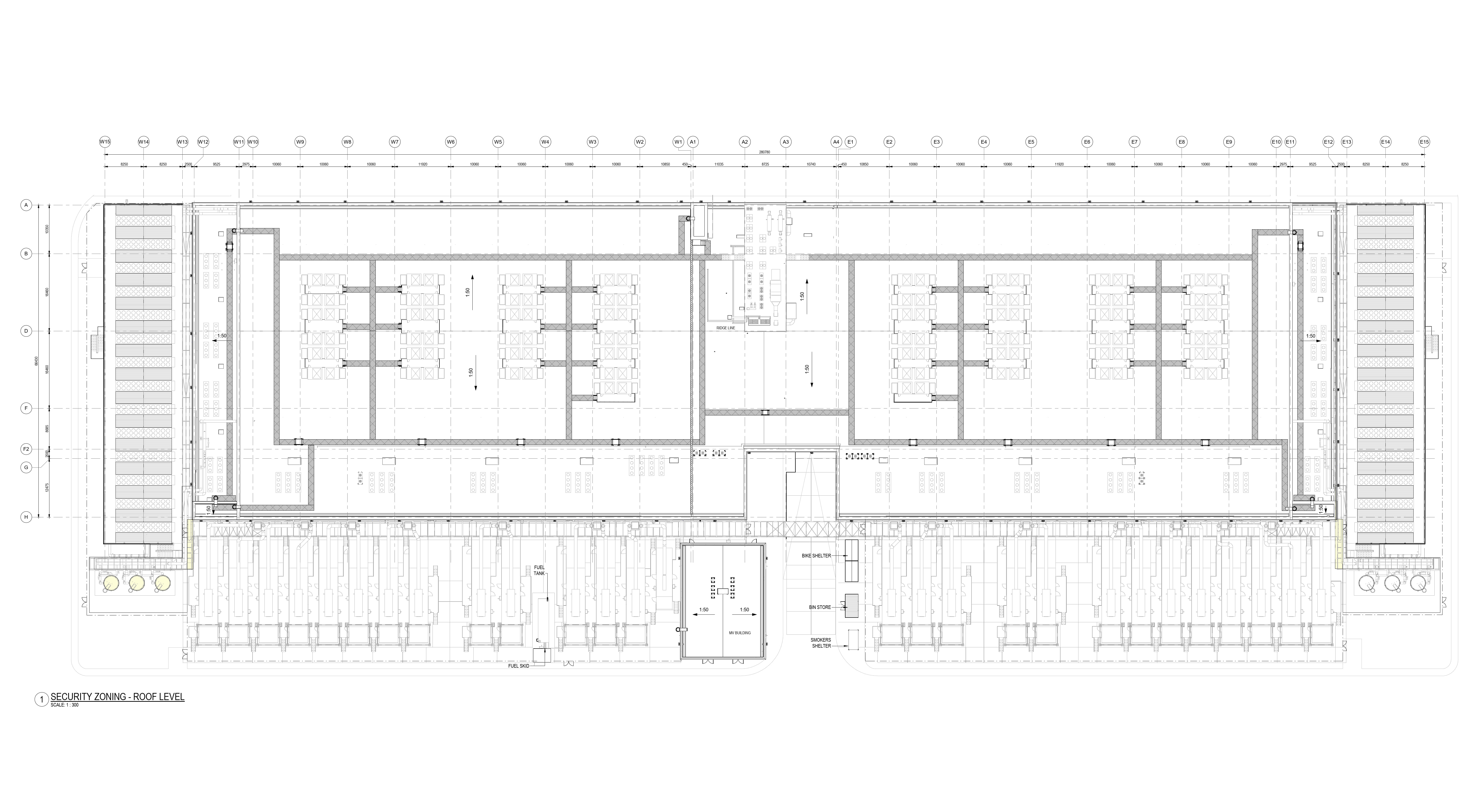
ROOF PLAN
GROUND FLOOR PLAN
ELEVATIONS
CONTEXT
The AWS Data Centers in Riyadh, represents highly engineered architectural solutions designed to support large-scale cloud infrastructure while meeting the stringent technical, environmental, and regulatory requirements of Saudi Arabia. The project integrates industrial performance with a clear, rational architectural expression that prioritizes efficiency, safety, and operational resilience.
Set on multple +120,000 m² sites, the design organizes 18,520 m² of built area into a clean, functional layout centered around a 5,800 m² data hall. This primary space is conceived as a robust ground-bearing structural volume engineered for high load capacities, accommodating up to 2,856 rack positions. The architectural massing employs a steel structural system with a fully sprinklered Type II construction, allowing for expansive, column-free data hall spans and optimized mechanical and electrical distribution. Supporting volumes—including electrical rooms, mechanical spaces, AHU rooms, and administrative offices—are arranged to streamline workflows and ensure efficient equipment routing. Clear heights of 3 meters across all critical spaces enable unobstructed cable tray management, overhead mechanical systems, and flexible future expansion.
The building envelope is designed for durability and thermal performance, responding to Riyadh’s climate with minimal openings and a focus on controlled internal environments. A mezzanine level of 3,646 m² accommodates supplementary services and structured cabling pathways, while the roof is planned for significant mechanical loading, supporting extensive HVAC systems needed for high-density cooling. Hot aisle containment strategies, optimized airflows, and precise mechanical zoning shape the interior architecture of the technical spaces. Overall, the AWS Data Center’s architectural design reflects a disciplined, purpose-built approach—balancing industrial robustness, operational clarity, and technical precision to create a future-ready digital infrastructure facility for Saudi Arabia.