KZN Schools
Primary & Secondary schools for Department of Education
đ Category: Educational Architecture
ⲠLocation: KZN, SOUTH AFRICA
đ Year: 2022-2025
____________________________________
đ Year: 2022-2025
____________________________________
BETWEEN CLASSES RENDER
GUARDHOUSE RENDER
SCHOOL 2 AERIAL RENDER
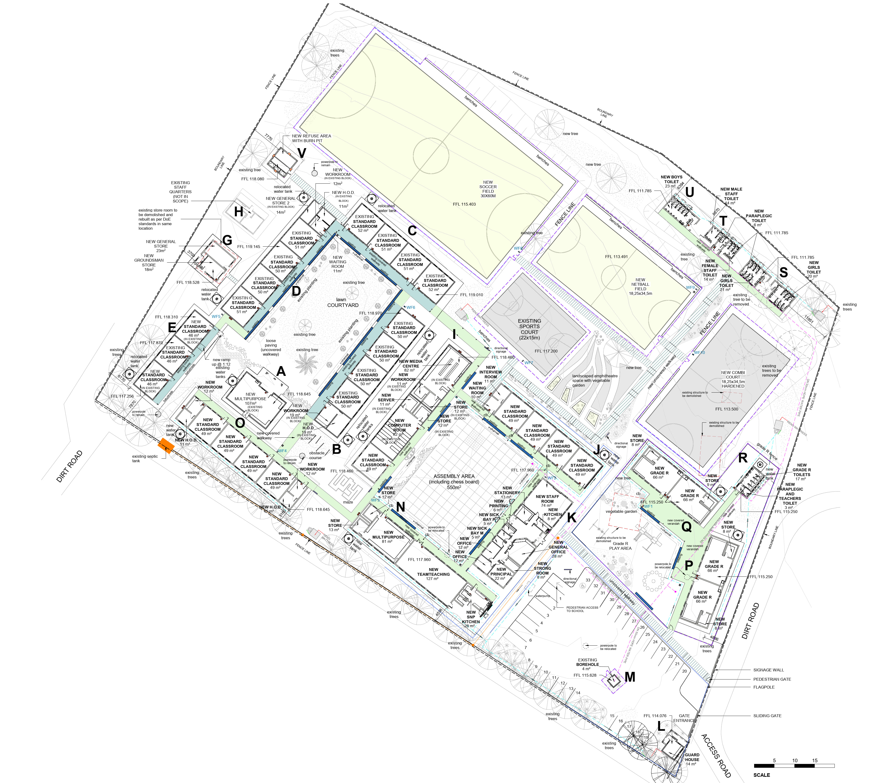
SCHOOL 2 SITE DEVELOPMENT PLAN
GRADE R PLAY AREA RENDER
PLAYGROUND AREA RENDER
SCHOOL 1 AERIAL RENDER
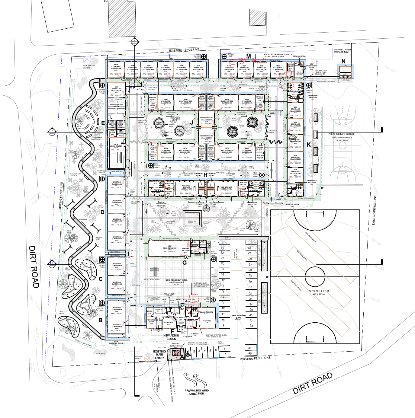
SCHOOL 1 SITE DEVELOPMENT PLAN
SCHOOLS U-SHAPED DESIGN RENDER
CONNECTIVITY RENDER
SNP KITCHEN RENDER
SCHOOL 3 AERIAL RENDER
SCHOOL 3 SITE DEVELOPMENT PLAN
CONTEXT
This series of rural school upgrades and new-build projects across KwaZulu-Natal is designed to create safe, functional, and dignified learning environments aligned with the Department of Education (DoE) accommodation standards. The architectural approach focuses on transforming aging and fragmented campuses into coherent, learner-centred precincts with improved circulation, resilient materials, and climate-appropriate design. Each school is organized around a network of human-scaled courtyards, as reflected in the uploaded visualisation. These outdoor learning and social spaces provide natural surveillance, encourage interaction, and anchor the buildings within a familiar rural context. New classroom blocksâcomprising standard, team-teaching, computer, media, and multipurpose roomsâare strategically distributed to balance enrolment capacity while preventing overcrowding. Existing structures are retained and refurbished where feasible, with repairs to degraded windows, ceilings, and roof elements.
A new, consolidated Administration Block strengthens each schoolâs public interface, ensuring that visitors encounter a clearly defined and welcoming point of entry. Upgraded ablutions, compliant SNP kitchens, decentralised student toilets, and covered walkways improve hygiene, accessibility, and everyday functionality. The design integrates stormwater management elements, including roof-water harvesting tanks, V-drains, and erosion-control measures, ensuring resilience in heavy-rain conditions.
Outdoor environments receive significant enhancement through new sports fields, seating areas, tree planting, and learner-friendly landscaping such as sunken seating courts and art-wall opportunities. The circulation network is reinforced by colourful, varied column designs along the walkways, adding vibrancy while sheltering learners from weather. Collectively, these projects create adaptable, robust, and uplifting educational environmentsâpurpose-built to support teaching excellence and student wellbeing in rural KZN communities.