TOYOTA Gym
đ Category: Healthcare Architecture
âČ Location: Durban, SOUTH AFRICA
đ Year: 2022
____________________________________
đ Year: 2022
____________________________________
STREET LEVEL RENDER
INTERNAL PHOTO
INTERNAL RENDER
INTERNAL PHOTO
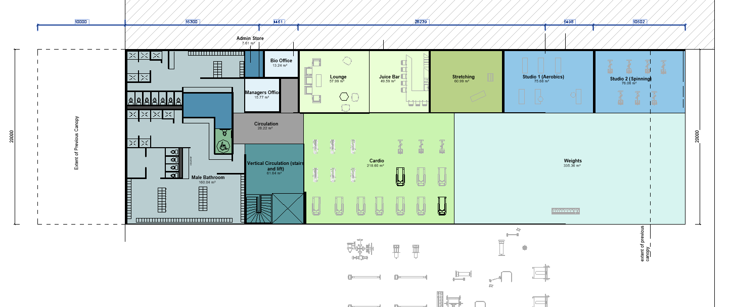
GROUND FLOOR PLAN
The Toyota Fitness Centre is a contemporary wellness facility designed to reflect the precision, efficiency, and forward-thinking ethos of Toyota while providing an uplifting, high-performance environment for staff and visitors. The architectural vision focuses on simplicity of form, robust materials, and light-filled interiorsâcreating a seamless blend of industrial aesthetic and modern hospitality. The exterior is defined by clean concrete planes, bold signage, and an extended cantilevered roof that frames the buildingâs linear profile. Large expanses of glazing along the upper level flood the gym floor with natural light while offering panoramic views of the surrounding precinct. Subtle façade graphics echo themes of movement and athleticism, reinforcing the centreâs identity and placing wellness at the forefront of the user experience. The ground level accommodates sheltered parking and pedestrian access, ensuring a smooth arrival sequence protected from the elements.
Inside, the spatial layout prioritizes openness and visibility. A double-depth gym hall houses cardio and strength-training zones organized around generous circulation paths. Warm artificial lighting and considered material choicesâmirrors, acoustic ceilings, textured surfaces, and soft flooringâcreate a welcoming yet performance-driven atmosphere. Complementary spaces include a health cafĂ© and social lounge featuring timber accents and a calming colour palette, encouraging recovery, interaction, and community building. Throughout the design, the architecture balances functional durability with refined detailing. The result is a fitness facility that supports both physical wellbeing and corporate cultureâan amenity that embodies Toyotaâs commitment to innovation, people-centred environments, and continuous improvement.