HEINEKEN Brewery
š Category: Industrial Architecture
ā² Location: Maputo, MOZAMBIQUE
š Year: 2017-2018
____________________________________
HEINEKEN Brewery
š Year: 2017-2018
____________________________________
SITE PHOTO
SITE PHOTO
AERIAL 3D VIEW
AERIAL RENDER
AERIAL RENDER
AERIAL RENDER
AERIAL RENDER
AERIAL RENDER
AERIAL RENDER
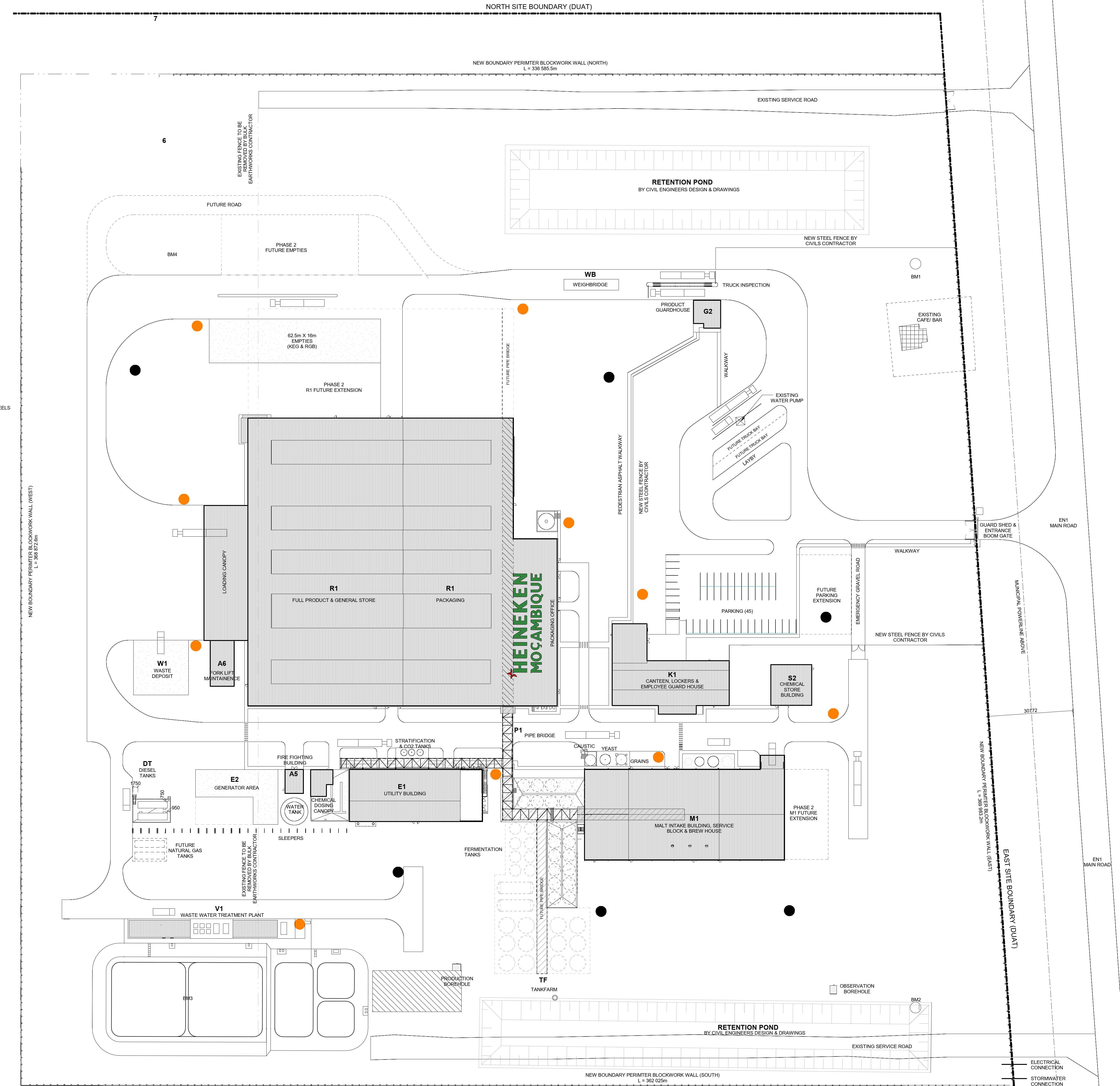
SITE DEVELOPMENT PLAN
CONTEXT
The Heineken Mozambique Brewery is a major industrial facility designed to support high-volume beverage production through efficient planning, contemporary industrial architecture, and streamlined process flow. The complex is composed of interconnected production, logistics, and administrative buildings arranged to optimize each stage of the brewing cycle.Large-span steel structures define the brewhouse, packaging hall, and warehouse, each clad in light, thermally efficient metal panels suited to the regionās climate. Vertical fermentation silos and utility towers anchor the production areas, creating a recognizable industrial profile while emphasizing the facilityās technical capabilities. The architecture prioritizes clarity and durability, with forms and materials chosen for performance, longevity, and ease of maintenance.
The axonometric site plan illustrates a well-organized campus emphasizing functional zoning and circulation. Wide internal roads support heavy transport movement, while pedestrian and administrative areas remain safely separated. Support buildingsāsuch as laboratories, offices, and servicesāare positioned for operational oversight and efficient access to the main production lines. Landscaping buffers and structured open spaces contribute to a clean, orderly industrial environment.The inclusion of designated outdoor gathering zones, as seen in the site photograph, allows for staff activities and events, adding a human-centered element to the industrial setting and reinforcing Heinekenās brand identity.Overall, the project achieves a strong balance between technical performance, environmental consideration, and corporate presence, resulting in a modern, scalable brewery complex that strengthens Mozambiqueās growing manufacturing sector.