Kyle Pather's Portfolio

DUT – Lecture Venues

🗁 Category: Educational Architecture

Location: Durban, SOUTH AFRICA

🗓 Year: 2023

____________________________________


EXTERIOR RENDER

EXTERIOR RENDER OF LECTURE VENUE


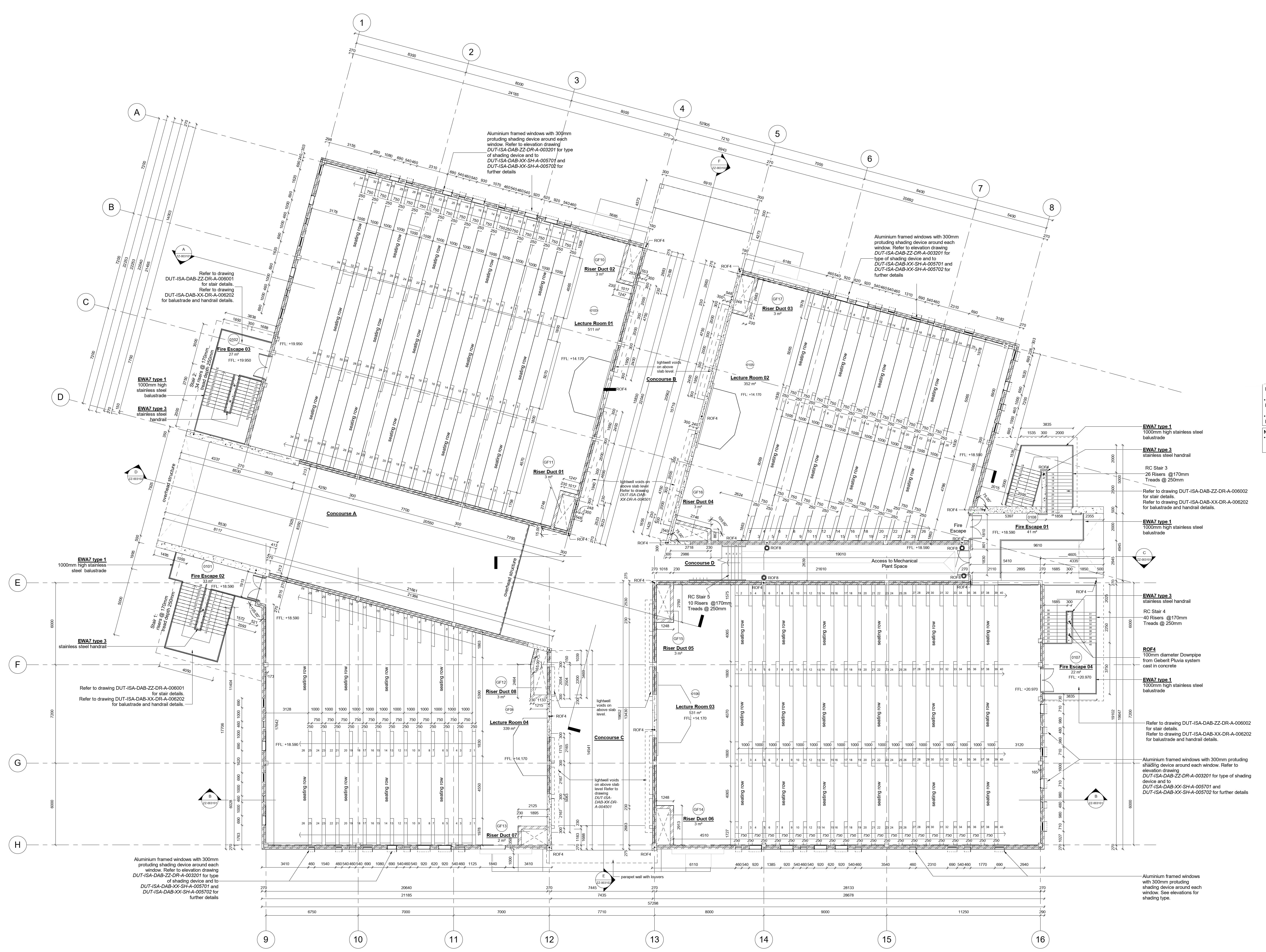
LECTURE VENUE GROUND FLOOR PLAN

EXTERIOR RENDER


EXTERIOR RENDER OF LECTURE VENUE



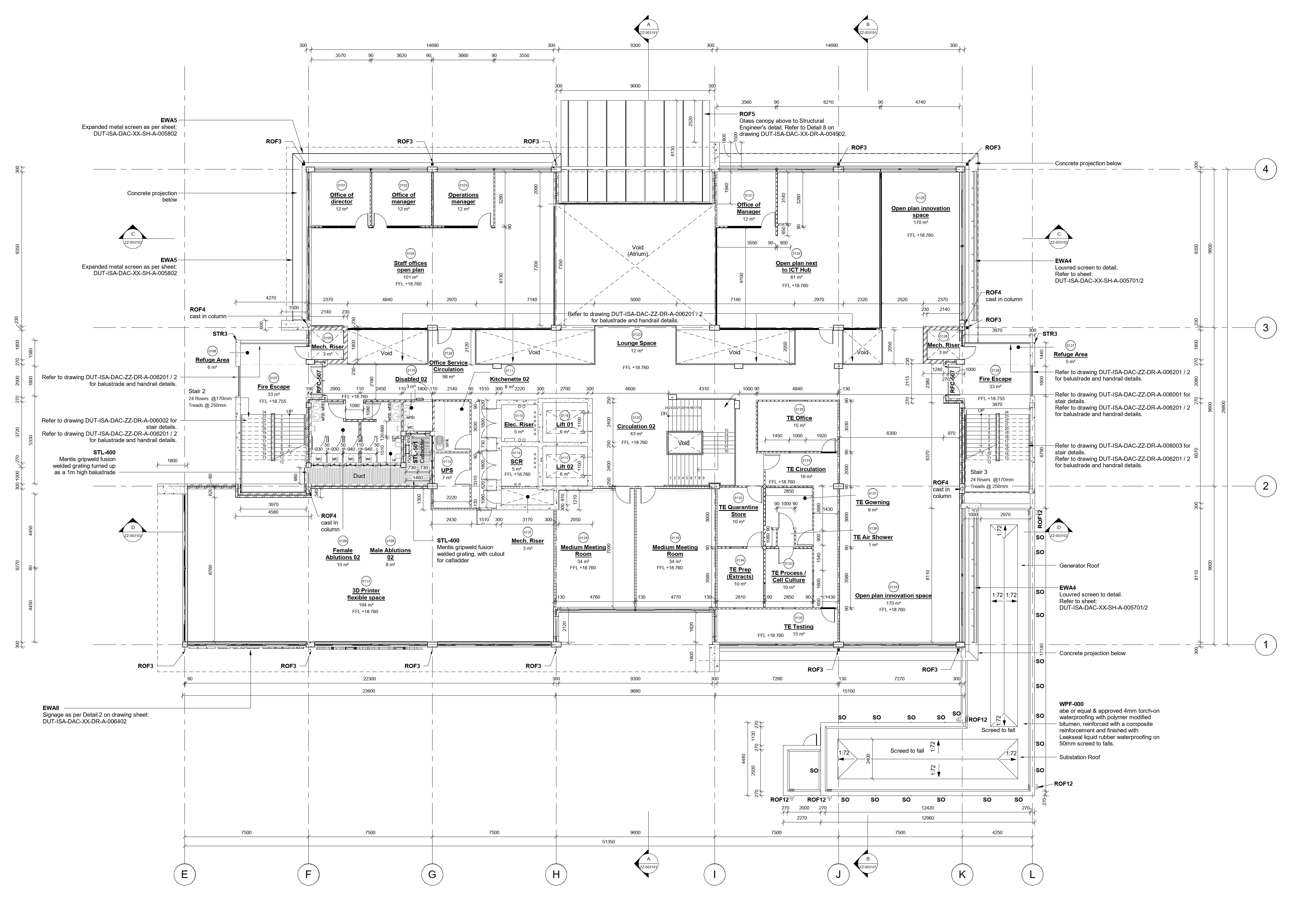
HEALTH SCIENCES + INNOVATION HUB GROUND FLOOR PLAN


SITE PLAN

EXTERIOR RENDER OF BOTH STUDENT BLOCKS


EXTERIOR RENDER OF WALKWAY


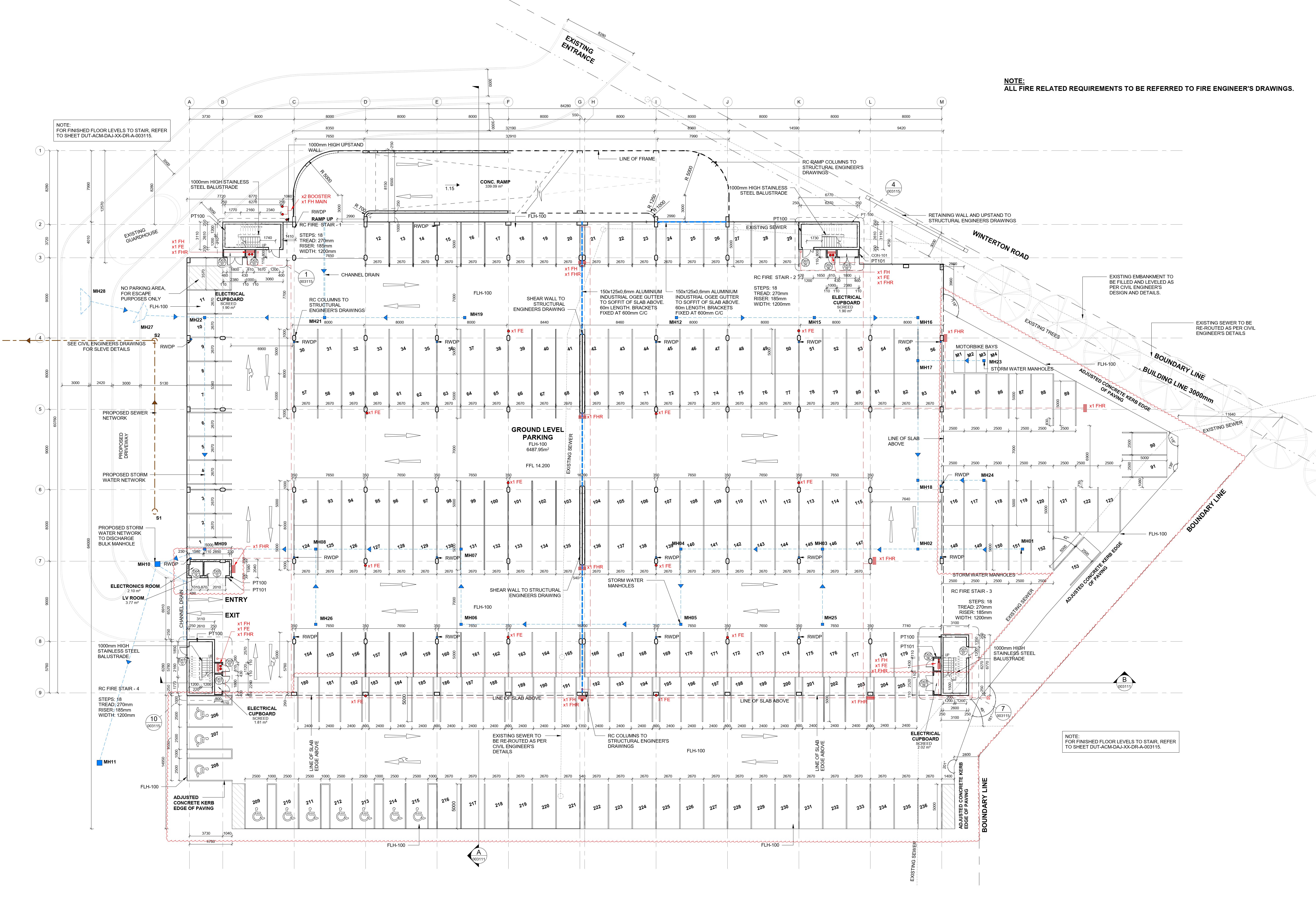
PARKADE GROUND FLOOR PLAN


CONTEXT

The Ritson Campus Masterplan for Durban University of Technology (DUT) represents a bold investment in reshaping the academic landscape and campus infrastructure to support its long-term strategic growth and academic excellence. This development is conceived to foster innovation, learning, and community engagement while optimizing land use in a rapidly growing university precinct.

The masterplan includes several key components:


  • A Health Science Building, purpose-built to support advanced teaching and research in medical and health disciplines.
  • An Innovation Hub, designed as a collaborative space where students, faculty, and industry partners can co-create, prototype, and develop entrepreneurial ideas.
  • A tech-enabled Lecture Venue, featuring modern classrooms, adaptable learning environments, and leading-edge audiovisual infrastructure.
  • A multi-level Parkade, addressing parking constraints and offering a structured, land-efficient solution for the campus.

Architecturally, the project weaves together contemporary design, sustainable strategies, and campus-scale cohesion. The buildings are designed to maximize daylight, improve circulation, and integrate seamlessly with the existing campus fabric. Landscape design and open spaces are integral, offering inviting outdoor areas for study, interaction, and reflection.

Sustainability is a priority: the plan incorporates energy-efficient systems, intelligent spatial zoning, and green infrastructure to reduce environmental impact and enhance resilience. By integrating academic, innovation, and transport infrastructure under one cohesive vision, the masterplan strengthens DUT’s role as a progressive and future-facing academic institution.