DUT Student Village
🗁 Category: Residential Architecture
⚲ Location: Durban, SOUTH AFRICA
🗓 Year: 2016
____________________________________
DUT Student Village
____________________________________
STREET LEVEL PHOTO
STREET LEVEL PHOTO
COURTYARD PHOTO
COURTYARD PHOTO
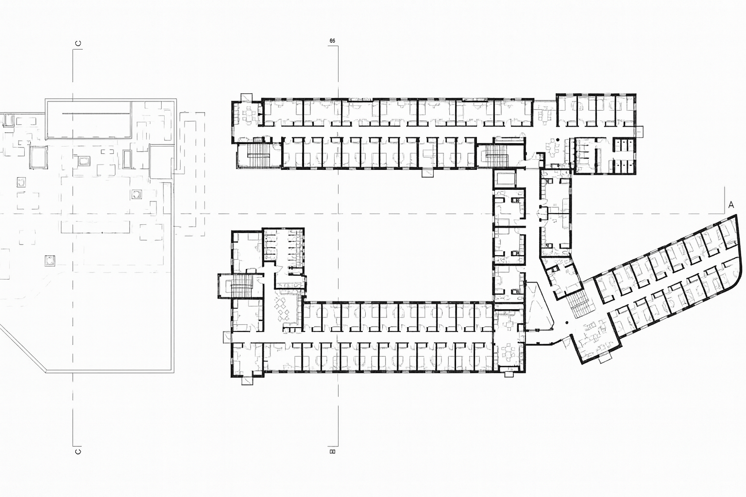
GROUND FLOOR PLAN
This student residence development for the Durban University of Technology (DUT) creates a vibrant, contemporary living environment that enhances academic life, wellbeing, and community on campus. The project comprises a series of multi-storey residential blocks arranged around landscaped courtyards that serve as shared social and recreational spaces for students.The architecture is defined by robust materiality and a lively visual identity. Red brick façades establish durability and continuity with traditional campus architecture, while vertical colour bands in shades of green, blue, and purple introduce rhythm, individuality, and natural wayfinding across the buildings.
Deep-set windows, shading elements, and lightweight roof forms help moderate heat gain and maximise natural light, providing comfortable living conditions suited to Durban’s climate.Central courtyards are designed as active communal hubs, featuring lawn areas, seating zones, and transparent community rooms that encourage visibility and social interaction. These spaces balance privacy and openness, offering students places to relax, study, and connect.Circulation is supported by covered walkways, shaded pedestrian routes, and elevated access points that improve safety and allow smooth movement throughout the precinct. Slender structural columns and cantilevered upper levels create sheltered ground-floor areas while maintaining a sense of openness.
Overall, the development delivers a cohesive, human-scaled residential precinct that blends practicality, safety, and vibrancy—reflecting DUT’s commitment to creating inclusive, high-quality accommodation that supports student success and campus life.